Seniorenheim bringt Vorteile

Archiv

Gemeinderat gibt dem Bebauungsplan für das Altenheim in Sternenfels grünes Licht

Der Sternenfelser Gemeinderat hat in der Sitzung am vergangenen Donnerstag dem vom Ingenieurbüro Bohner ausgearbeiteten Bebauungsplanentwurf für das Seniorenheim im Ortskern zugestimmt. Das Gebäude soll unterhalb des TeleGIS-Innovationscenters entstehen.

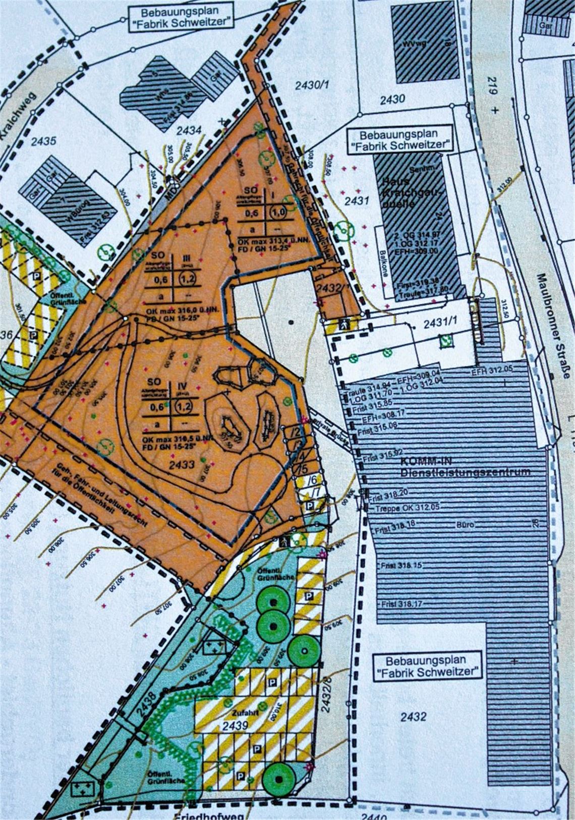
Der Bebauungsplan für das Seniorenzentrum sieht eine Fläche von rund 66 Ar unterhalb des TeleGIS-Innovationscenters vor.

Der Bebauungsplan für das Seniorenzentrum sieht eine Fläche von rund 66 Ar unterhalb des TeleGIS-Innovationscenters vor. Foto: Huber

Sternenfels. Im ursprünglichen Bebauungsplan „Fabrik Schweitzer“ aus den 1990er Jahren waren unterhalb des Sternenfelser TeleGIS-Innovationscenters und der betreuten Seniorenwohnanlage „Kraichquelle“ zwei Wohnhäuser geplant. Nun hat der Gemeinderat mit einer Enthaltung von Bianca Lillich von der Liste für Sternenfels und Diefenbach (LfSuD) der Änderung dahingehend zugestimmt, dass dort ein Gebäude entstehen kann, das dann als Altenheim genutzt wird. Als Betreiber steht das Sozialwerk Bethesda, das unter anderem solche Einrichtungen auch bereits in Maulbronn und Knittlingen hat, in den Startlöchern.

Wir freuen uns, dass Sie sich für einen logo Artikel interessieren. Jetzt registrieren und weiterlesen.

  • Alle Webseiteninhalte
  • Inklusive aller logo Artikel
  • Jederzeit kündbar

Sie sind bereits Abonnent? Hier einloggen

Artikel empfehlen