Pläne für neues Wohngebiet in Illingen

Archiv

Paulus Wohnbau GmbH präsentiert im Herbst einen Entwurf für eine Belebung der Lerchenstraße – Wohnraum für 270 neue Einwohner

Die Paulus Wohnbau GmbH ist nicht nur einer der heißen Kandidaten bei der Investorensuche für eine Belebung des Ade-Areals und des Geländes Hinter dem Fitnessstudio in Illingen. Das Unternehmen aus Pleidelsheim möchte auch die Lerchenstraße in Illingen als Wohngebiet erschließen lassen.

Pläne für neues Wohngebiet in Illingen

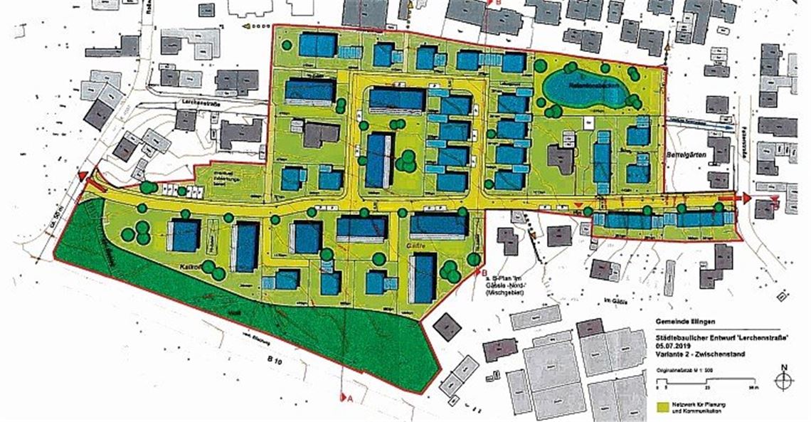
Mit dem städtebaulichen Entwurf für das künftige Baugebiet an der Lerchenstraße befasst sich der Illinger Gemeinderat nach der Sommerpause. Plan: Sippel/Buff

Noch prägt eine kunterbunte Mischung aus Landwirtschaft, Gartenbau und einigen Gebäuden die Lerchenstraße. Bald soll hier ein Wohngebiet entstehen. Foto: Disselhoff

Wir freuen uns, dass Sie sich für einen logo Artikel interessieren. Jetzt registrieren und weiterlesen.

  • Alle Webseiteninhalte
  • Inklusive aller logo Artikel
  • Jederzeit kündbar

Sie sind bereits Abonnent? Hier einloggen

Artikel empfehlen