Die Enz soll künftig „naturnaher“ fließen

Archiv

Mühlacker. Die Bürger möglichst früh über die Vorstellungen der Planer zu informieren, sie „mitzunehmen“ und ihnen die Möglichkeit zu Anregungen zu geben, sei der Stadtverwaltung wichtig, sagte Bürgermeister Winfried Abicht, ehe die Landschaftsarchitektin Elke Ukas dem Gemeinderat ihre Planung zur Enzrenaturierung präsentierte.

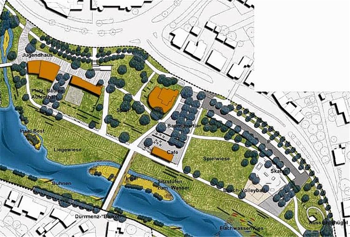
So könnte die Enz samt Vorland und angrenzendem Gartenschaugelände aussehen. Grafik: privat

So könnte die Enz samt Vorland und angrenzendem Gartenschaugelände aussehen. Grafik: privat

„Das Enzprojekt hängt eng mit der Gartenschau zusammen“, meinte sie eingangs. Der Fluss sei ein „verknüpfendes Element zwischen Mühlacker und Dürrmenz“. Leider sei die Enz arm an naturnahen Strukturen, was zum Beispiel an einem massiven Uferverbau liege. Doch dies soll sich ja nun ändern. „Wir wollen die Gewässerökologie verbessern“, kündigte Ukas an und sprach von „Verzahnungen von Mensch, Ökologie und Tier“. Mit Strömungsbereichen, Kiesbänken, Geröll, Buchten, Auflandungsbereichen, Inseln und Tiefwasserstellen für bestimmte Fischarten sollen Zonen unterschiedlicher Flusscharakteristik entstehen. Die Strukturverbesserungen dienen der Diversifizierung des Wasserabflusses und schaffen neue Lebensbereiche für Flora und Fauna. Elke Ukas sieht eine Natursteinmauer mit Treppen und eine Liegewiese am Ufer vor sowie im rückwärtigen Bereich eine Spielwiese, ein Beachvolleyballfeld und möglicherweise eine Skater-Anlage. Darüber hinaus soll ein Promenadenweg entstehen, über den das Jugendhaus im Westen und ein Café angebunden sind. Die Gärten auf der Dürrmenzer Seite möchte die Planerin erhalten, allerdings könnte sie sich vorstellen, manche von ihnen „umzuverlagern“. Als störend empfindet sie die Pappeln auf der Mühlacker Seite, die die Sicht aufs Wasser nehmen und den Flussraum von den Freiräumen abgrenzen. „Um Luft reinzubekommen“, sollten etliche Pappeln weichen.

Wir freuen uns, dass Sie sich für einen logo Artikel interessieren. Jetzt registrieren und weiterlesen.

  • Alle Webseiteninhalte
  • Inklusive aller logo Artikel
  • Jederzeit kündbar

Sie sind bereits Abonnent? Hier einloggen

Artikel empfehlen